Design af svømmesøer, naturpools og natursøer

Læs mere om designprocessen, bad en svømmesø, naturpool eller natursø.

1
Trin 1 - Vælg type
Først beslutter du, hvilken type badevand du ønsker at etablere.

Svømmesø eller naturpool

Vælger du en svømmesø, får du et naturligt udtryk med ca. 66 % badeareal.
En svømmesø etableres altid med en dekorativ bredzone langs kanten – ofte kombineret med én eller flere rette sider mod terrasse eller opholdsareal. Alternativt kan du vælge en naturpool. Den har et mere stringent, pool-lignende udtryk uden bredzoner og giver ca. 80 % badeareal.

Begge løsninger giver krystalklart badevand, høj grad af vandrensning, begrænset artsrigdom og meget begrænset trådalgevækst.

Vandrensning

Vandrensningen kan ske enten internt i søens eget vandspejl eller eksternt i en separat skimmersø.

Ved intern vandrensning er de biologiske filterzoner integreret i selve søens opbygning,
typisk som plante- og filterzoner langs kanten eller i særlige rensningszoner.

Ved ekstern vandrensning ledes vandet til en skimmersø, hvor den biologiske rensning,
cirkulationspumpe og eventuelle fosfatfiltre er indbygget og skjult mellem vandplanter.

Skimmersøen

Skimmersøen udgør typisk ca. 12–15 m² i svømmesøer og natursøer, afhængigt af vandspejlets størrelse og belastning.
Skimmersøen har samtidig en vigtig praktisk funktion, da blade, pollen og støv opsamles her og nemt kan fjernes manuelt ét samlet sted.
I naturpools uden bredzoner dimensioneres skimmersøen større og udgør typisk ca. 20 % af det samlede vandspejlsareal.

Natursø

Er ønsket primært et vandspejl til pryd og i mindre grad badning, kan en natursø være det rette valg.
Her udgør badearealet ca. 33 %, mens resten af vandspejlet er delvist dækket af vand- og undervandsplanter.
Vandet er rent og klart det meste af tiden, men med lavere grad af vandrensning.
Trådalger kan forekomme periodisk, da de har samme vækstbetingelser som vandplanterne.

Prydbassin

Et prydbassin er udelukkende til visuel glæde og uden bademulighed – fx som spejlbassin i haven.
Den biologiske vandrensning indbygges som en integreret del af bassinkonstruktionen.

2
Trin 2 - Placering
Vandet placeres dér, hvor du får størst visuel og funktionel glæde – typisk tæt ved huset og i forbindelse med hovedterrassen. Placér samtidig vandspejlet så langt fra træer som muligt for at minimere belastning fra blade og pollen.
3
Trin 3 - Størrelse
Overvej, hvor langt du vil kunne svømme. En klassisk swimmingpool er ofte 4 × 8 m eller 5 × 10 m, hvilket giver reelle svømmetag. Mindre badearealer giver det, vi kalder en badeoplevelse. Husk, at bredzoner og skimmersø skal tillægges selve svømmearealet ved dimensioneringen.
4
Trin 4 - Beregn budget
Overvej, hvor langt du vil kunne svømme. En klassisk swimmingpool er ofte 4 × 8 m eller 5 × 10 m, hvilket giver reelle svømmetag. Mindre badearealer giver det, vi kalder en badeoplevelse. Husk, at bredzoner og skimmersø skal tillægges selve svømmearealet ved dimensioneringen.
5

Trin 5 – Kontakt Junckerhaven

Drøft dine ideer med os.
Du kan få et indledende møde, et besøg i haven eller tage dialogen telefonisk eller på mail.

6

Trin 6 – Få hjælp til designet

Junckerhaven samarbejder med erfarne have- og landskabsarkitekter,
som har dokumenteret erfaring med design af svømmesøer, naturpools og natursøer.

Arkitekter finder du herunder.

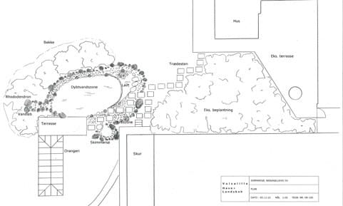
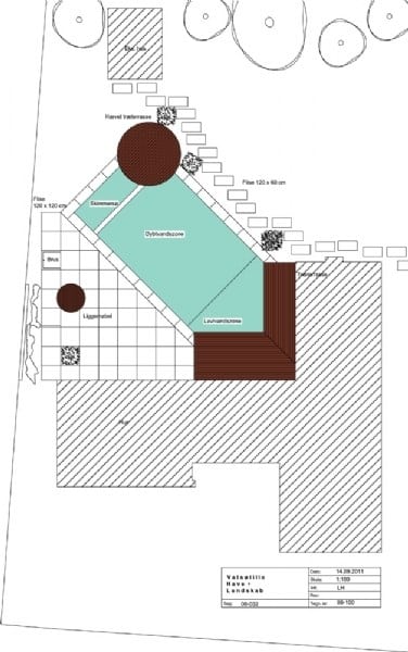
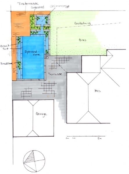
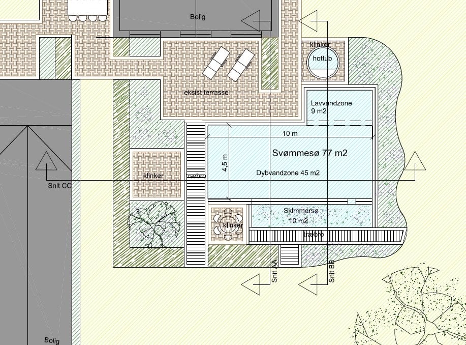
Designregler svømmesø

En svømmesø etableres med 3 zoner og en tilhørende skimmersø​.

Bredzonen​ mellem land og vand til dekoration og vegation – 5 cm dybt til vandplanter – 1 meter bred

En eller flere sider af søen kan erstattes med lodrette støbte sider (uden bred)​

Lavtvandszone(r) til svømning/badning/hvile

Typisk 100-120 cm dyb (vand til navlen) , men kan være lavere til børneområder

Herfra etableres trædesten eller poolstige for sikker adgang til land.​

Dybvandszonen​ til svømning/badning – 2 meter lodrette sider til udspring. Skal støbes ved sandjord​

Skimmersøen; etableres bedst mod øst, idet vores primære vindretning er fra vest. Skimmersøen måler typisk 2×2,5 meter = 5 m2

Designregler for naturpool

En naturpool etableres med en pool del til rens svømning og en separat del af poolen til den biologiske vandrensning.​

Bredzonen​ etableres ikke. Rent svømmearel i pooldelen​

Lavtvandszone(r) til svømning/badning/hvile

Typisk 100-120 cm dyb (vand til navlen) , men kan være lavere til børneområder

Herfra etableres trædesten eller poolstige for sikker adgang til land​

Dybvandszonen​ til svømning/badning – 2 meter lodrette støbte sider til udspring.​

Skimmersøen = naturpoolens vandrensningsdel skal min optage 20% af vandspejlet

Designregler for natursø

En natursø etableres med ​2 zoner og en skimmersø.

​Plantezonen​ mellem land og vand til dekoration og vegation – 5 cm dybt i kanten og ned til 40 -50 cm mod midten i ca. 3 meters bredde. Trædesten eller badebro, giver adgang til vand igennem.​

Dybvandszonen​ til svømning/badning – 2 meter lodrette sider til udspring.​

Skimmersøen; etableres bedst mod øst, idet vores primære vindretning er fra vest. Skimmersøen måler typisk 2×2,5 meter = 5 m2

Vi tegner også svømmesøer og Naturpools - Havearkitekter

Læs mere om vores designere og se deres projekter.

Kontakt os i dag

Vi er klar til at hjælpe dig videre. Ring eller skriv til os i dag.

46 49 61 03 20 99 61 03 Send mail